东易力天工装
全国服务热线:
13673369777
当前位置:首页>>新闻资讯>>公司新闻

郑州家装公司简美格调:一半泊于眼底,一半安放生活

作者:郑州家装公司 浏览量:747次 发布日期:2018-11-30 09:01:49
      郑州家装公司简美格调:一半泊于眼底,一半安放生活
冬着一身素衣,缓缓而来
季节没有了往日的姹紫嫣红
却用简单的线条勾勒出一幅洁白的画
纯洁通透,轻盈自然
冬删繁就简,没有负累
冬是薄情,亦是深情...
郑州家装公司简美格调:一半泊于眼底,一半安放生活
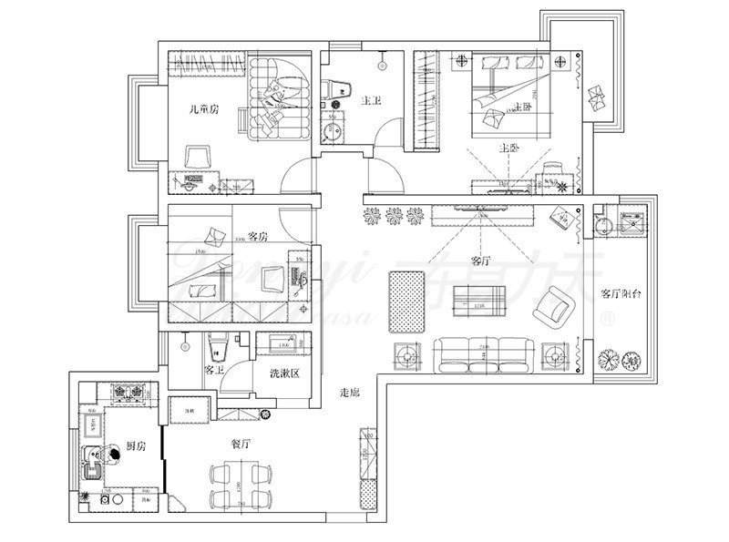
平面布局图
郑州家装公司简美格调:一半泊于眼底,一半安放生活
入门玄关
      装修亦是如此,对于本案,郑州家装公司设计师采用简美风格,一半泊于眼底,一般安放生活,删繁就简,却是素静温馨。守着一抹寻常,浅唱一城烟火,每一份空间都藏着安静温馨的模样。

郑州家装公司简美格调:一半泊于眼底,一半安放生活
客厅沙发背景墙
郑州家装公司简美格调:一半泊于眼底,一半安放生活
客厅电视背景墙
郑州家装公司简美格调:一半泊于眼底,一半安放生活
餐厅
郑州家装公司简美格调:一半泊于眼底,一半安放生活
洗漱区
郑州家装公司简美格调:一半泊于眼底,一半安放生活
主卧
郑州家装公司简美格调:一半泊于眼底,一半安放生活
儿童房
      儿童房东易力天装饰设计师装了一面黑板墙,享一片美好时光!这是一个文艺情调而又实用的好设计!供孩子涂鸦,激发孩子潜能,同时再也不用为孩子乱涂乱画烦恼了。
郑州家装公司简美格调:一半泊于眼底,一半安放生活
小户型书房+客房
     客卧郑州家装公司榻榻米设计,涵括衣柜、储物柜、书桌柜等,收纳书籍、日常杂物或摆设装饰品,拥有强大储物空间,尤其是快到过年了,想接爸妈一起住,多种家居功能自由切换。
— END —

      东易力天15周年庆800万装修款,感恩回馈新老客户!——1元购,超值尊享,即装即住!
      乐装热线:0371-68081872
      咨询地点:郑州市中州大道与商都路交叉口东易力天大厦四楼

      数载辉煌,感恩有你
      活动期间定东易力天全屋整装
      A:1元购价值4980元四季沐歌外挂式太阳能热水器一台。
      B:1元购价值3280元正泰智能指纹锁一套。
      老带新享五折购价值1980元五级净水器一台。

      选择东易力天装饰的五大理由:
      【微设计】六大设计体系轻松实现系统化、风格化、舒适化、品质化。独创精准设计,从而降低成本,提升性价比。
      【新时尚】东易力天极易原创设计大师将意大利、米兰*新设计风格融入来中国现代生活。开启中国家居设计时尚风潮。
      【大品牌】中国生态家装领导品牌,中国建筑装饰百强企业,十余年发展,荣誉无数。
      【好口碑】5000户幸福家庭,品质鉴证东易力天生态家装的健康环保独特生活。
      【可信赖】家装VIP“管家式”售后服务,30个装修环节、20次验收,100道工序监理,2年保修,终生维修。

新闻推荐

扫一扫 QQ在线咨询
扫一扫 关注官方微信
在线客服预约装修装修报价

小程序扫一扫QQ在线咨询

社群扫一扫关注官方微信